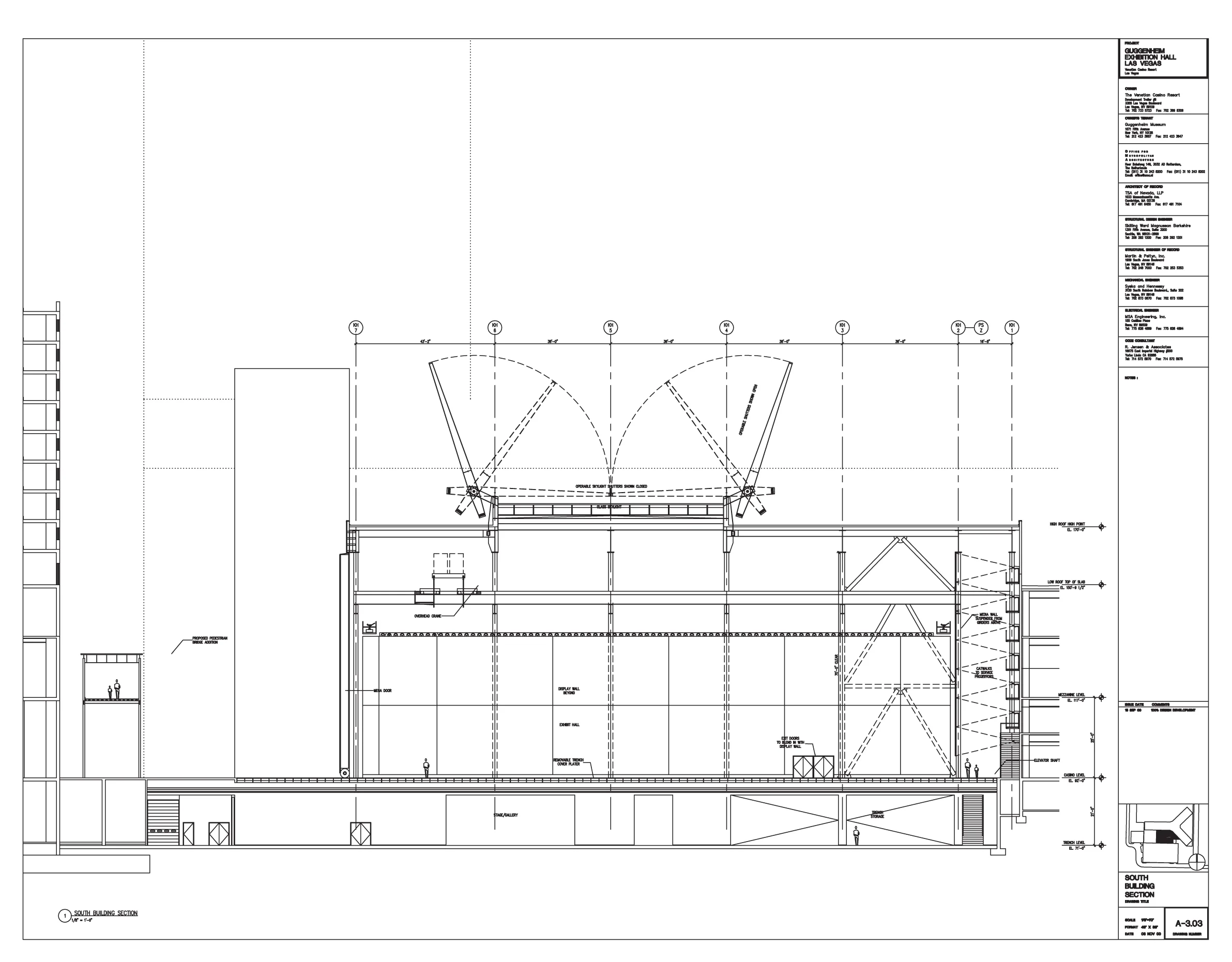
GUGGENHEIM LAS VEGAS - 2000-2001 (REM KOOLHAAS)
This monumental 5,850 square meter exhibition hall in The Venetian Las Vegas, designed by Rem Koolhaas included unique industrial features and current technology. It was conceived as a venue for the Guggenheim’s widely acclaimed exhibition The Art of the Motorcycle which had a highly successful 15-month run.
